ลิฟต์ยกรถ ไฮดรอลิกคุณภาพสูง ครบทุกการใช้งานอู่ซ่อมรถ
ลิฟต์ยกรถ Würth ถูกออกแบบเพื่อตอบโจทย์งานซ่อมบำรุง ตั้งศูนย์ และบริการยานยนต์ทุกประเภท มีให้เลือกทั้งแบบ ลิฟต์กรรไกร, ลิฟต์สองเสา และ ลิฟต์ตั้งศูนย์ รองรับการยกน้ำหนักตั้งแต่ 3.5 – 4.5 ตัน โครงสร้างแข็งแรง มาตรฐานยุโรป พร้อมระบบความปลอดภัยครบถ้วน เหมาะสำหรับอู่ซ่อมรถที่ต้องการเพิ่มความสะดวกและประสิทธิภาพในการทำงาน
ดูรุ่นที่เหมาะกับคุณ หรือสอบถามเพิ่มเติมด้านล่างได้เลย!
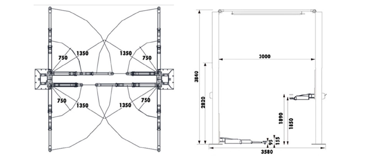
ลิฟต์ไฮดรอลิกไฟฟ้าสองเสา อัตโนมัติ 4.5 ตัน
ลิฟต์สองเสาแบบอัตโนมัติ ขนาด 4.5 ตัน ใช้งานง่ายด้วยระบบปลดล็อกอัตโนมัติเต็มรูปแบบ กระบอกไฮดรอลิกคู่ผลิตมาตรฐานสูง แข็งแรง ทนทาน ปลอดภัยด้วยอุปกรณ์ป้องกันเหนือศีรษะ และระบบล็อกแขนอัตโนมัติ มีให้เลือกทั้งหมด 3 สี (สีฟ้า, แดง, เทา) เหมาะสำหรับอู่ซ่อมรถที่ต้องการความเร็ว ความปลอดภัย และความสะดวกสบายในการยกรถ
คุณสมบัติ
- รุ่นมาตรฐานมาพร้อมกับวาล์วระบายแรงดันต่ำและฟันปั๊มเกียร์แนวตั้ง
 
- กระบอกไฮดรอลิกคู่ แบบไดเร็กไดร์ฟ ผลิตด้วยมาตรฐานสูง
 
- อุปกรณ์ป้องกันความปลอดภัยเหนือศีรษะ
 
- สีพาวเดอร์โค้ดคุณภาพ
 
- ระบบล็อกแขนลิฟต์อัตโนมัติ
 
- ระบบปลดล็อกอัตโนมัติเต็มรูปแบบ
 
- พร้อมผ้าปิดหน้าเสาตลอดแนว
 
					| ข้อมูลทางเทคนิค | |
|---|---|
| รับน้ำหนักได้ | 4500 กิโลกรัม | 
| ยกสูงสุด | 1850 กิโลกรัม | 
| ความสูงโดยรวม | 3850 มิลลิเมตร | 
| ความกว้างโดยรวม | 3550 มิลลิเมตร | 
| ระยะห่างระหว่างเสา | 3000 มิลลิเมตร | 
| ระยะสำหรับรถผ่าน | 2650 มิลลิเมตร | 
| ระยะยืด-หดแขนยก | 750-1350 มิลลิเมตร | 
| ความสูงของอแดปเตอร์ต่ำสุด | 95 มิลลิเมตร | 
| ความสูงของอแดปเตอร์สูงสุด | 155 มิลลิเมตร | 
| ระดับลิมิตสวิตช์ | 2680 มิลลิเมตร | 
| ขาต่อมาตรฐาน | 4 ชิ้น 80 มิลลิเมตร | 
| มอเตอร์อะลูมิเนียมสองขั้ว | 2.2 กิโลวัตต์ ( 3 แรงม้า) | 
| รอบต่อนาทีของมอเตอร์ | 2800 รอบต่อนาที | 
| แหล่งจ่ายไฟ | 380 โวลต์ 50 เฮริตซ์ (3 เฟส) | 
| ระยะเวลาการยกขึ้น/ลดระดับลง | ≤50 วินาที/35 วินาที | 
ลิฟต์ไฮดรอลิกไฟฟ้าสองเสา 4.5 ตัน
ลิฟต์สองเสารุ่นมาตรฐาน ขนาด 4.5 ตัน โดดเด่นด้วยโครงสร้างแข็งแรง ระบบล็อกแขนอัตโนมัติ และ ปลดล็อกแบบแมนนวล เพิ่มความยืดหยุ่นในการใช้งาน เคลือบสีพาวเดอร์โค้ท คุณภาพสูง ทนทานต่อการใช้งานระยะยาว มีให้เลือกทั้งหมด 3 สี (สีฟ้า, แดง, เทา) เหมาะกับอู่ซ่อมรถที่มองหาลิฟต์คุ้มค่า ใช้งานง่าย และมีความปลอดภัยสูง
คุณสมบัติ
- รุ่นมาตรฐานมาพร้อมกับวาล์วระบายแรงดันต่ำและฟันปั๊มเกียร์แนวตั้ง
 - กระบอกไฮดรอลิกคู่ แบบไดเร็กไดร์ฟ ผลิตด้วยมาตรฐานสูง
 - อุปกรณ์ป้องกันความปลอดภัยเหนือศีรษะ
 - สีพาวเดอร์โด้ดคุณภาพสูง
 - ระบบล็อกแขนลิฟต์อัตโนมัติ
 - ปลดล็อกแบบแมนวล
 - พร้อมผ้าปิดหน้าเสาตลอดแนว
 
					| ข้อมูลทางเทคนิค | |
|---|---|
| รับน้ำหนักได้ | 4500 กิโลกรัม | 
| ยกสูงสุด | 1850 กิโลกรัม | 
| ความสูงโดยรวม | 3850 มิลลิเมตร | 
| ความกว้างโดยรวม | 3550 มิลลิเมตร | 
| ระยะห่างระหว่างเสา | 3000 มิลลิเมตร | 
| ระยะสำหรับรถผ่าน | 2650 มิลลิเมตร | 
| ระยะยืด-หดแขนยก | 750-1350 มิลลิเมตร | 
| ความสูงของอแดปเตอร์ต่ำสุด | 95 มิลลิเมตร | 
| ความสูงของอแดปเตอร์สูงสุด | 155 มิลลิเมตร | 
| ระดับลิมิตสวิตช์ | 2680 มิลลิเมตร | 
| ขาต่อมาตรฐาน | 4 ชิ้น 80 มิลลิเมตร | 
| มอเตอร์อะลูมิเนียมสองขั้ว | 2.2 กิโลวัตต์ ( 3 แรงม้า) | 
| รอบต่อนาทีของมอเตอร์ | 2800 รอบต่อนาที | 
| แหล่งจ่ายไฟ | 380 โวลต์ 50 เฮริตซ์ (3 เฟส) | 
| ระยะเวลาการยกขึ้น/ลดระดับลง | ≤50 วินาที/35 วินาที | 
รหัสสินค้า 1918502290
ลิฟต์สองเสาคานล่าง 4.5 ตัน
ลิฟต์สองเสาคานล่าง ขนาด 4.5 ตัน ออกแบบพิเศษสำหรับรถสปอร์ตและรถที่มีช่วงล่างต่ำ แขนยกแบบแบนพิเศษปรับยืดหดได้ตามต้องการ ระบบซิงโครไนซ์ด้วยสลิงเหล็ก เพิ่มความมั่นคง แข็งแรง พร้อมระบบเซฟตี้ครบถ้วน ใช้งานได้อย่างปลอดภัยและราบรื่น เหมาะสำหรับอู่ที่รองรับรถยุโรป รถสปอร์ต และรถสมรรถนะสูง
คุณสมบัติ
- สวิตช์นิรภัย 24 โวลต์ เพื่อความปลอดภัยในการใช้งาน
 - ระบบล็อกนิรภัย แบบปลดมือ
 - จานยกหมุนได้ พร้อมกลไก ป้องกันการเสียหายระหว่างใช้งาน
 - ฟังก์ชันลดระดับฉุกเฉิน เมื่อเกิดไฟฟ้าขัดข้อง
 - โครงเสารูปทรงพิเศษ ผลิตจากวัสดุคุณภาพสูง ให้ความแข็งแรง และความเสถียรในการใช้งาน
 - ระบบยกกระบอกไฮดรอลิกคู่
 - ระบบล็อกแขนยกอัตโนมัติ
 - ผิวเคลือบด้วยสีฝุ่น คุณภาพสูง
 - ระบบซิงไครไนซ์ด้วยสายสลิงเหล็ก
 - แขนยกแบบยืดหดชนิดพิเศษ ทรงแบน สำหรับรถสปอร์ต
 
| ข้อมูลทางเทคนิค | |
| รับน้ำหนักได้ | 4500 กิโลกรัม | 
| ยกสูงสุด | 1900 กิโลกรัม | 
| ความสูงโดยรวม | 2826 มิลลิเมตร | 
| ความกว้างโดยรวม | 3384 มิลลิเมตร | 
| ระยะห่างระหว่างเสา | 2760 มิลลิเมตร | 
| ระยะสำหรับรถผ่าน | 2480 มิลลิเมตร | 
| ความยาวแขนด้านหน้า | 600-1100 มิลลิเมตร | 
| ความยาวแขนด้านหลัง | 750-1330 มิลลิเมตร | 
| ความสูงของอแดปเตอร์ต่ำสุด | 110 มิลลิเมตร | 
| ความสูงของอแดปเตอร์สูงสุด | 155 มิลลิเมตร | 
| มอเตอร์ | 2.2 กิโลวัตต์ | 
| แหล่งจ่ายไฟ | 380-415 โวลต์ (3 เฟส) | 
| ระยะเวลาการยกขึ้น/ลดระดับลง | ≤60 วินาที/20-60 วินาที | 
					รหัสสินค้า 5997570660
ลิฟต์เอ็กซ์ตั้งศูนย์ ไฮดรอลิกไฟฟ้า 4.5 ตัน
ลิฟต์ตั้งศูนย์ 4.5 ตัน ที่มาพร้อมแท่นยกเสริม 3 ตันในตัว ช่วยให้การตั้งศูนย์ล้อและซ่อมบำรุงทำได้สะดวกและแม่นยำมากขึ้น โครงสร้างแข็งแรงสมดุลพิเศษ รองรับงานตั้งศูนย์ได้หลากหลาย ระบบล็อกด้วยลม เพิ่มความปลอดภัยทุกครั้งที่ใช้งาน เหมาะสำหรับศูนย์บริการและอู่ซ่อมรถที่ต้องการความครบเครื่องในงานตั้งศูนย์
คุณสมบัติ
ลิฟต์สำหรับตั้งศูนย์
- แผงควบคุมมาพร้อมกับสวิตช์นิรภัย 24V
 - ลิฟต์เอ็กตั้งศูนย์ขนาด 4.5 ตันที่แข็งแรง
 - โครงสร้างที่สมดุลเป็นพิเศษสำหรับการตั้งศูนย์ล้อ
 - ระยะการทำงานกว้างตั้งแต่ระยะฐานล้อสั้นมากไปจนถึงยาวมาก
 - ระบบล็อกแบบนใช้ลม
 - ระบบการยกแบบไม่มีล้อ พร้อมแท่นยกแบบขยายได้
 - ปั๊มไฮดรอลิกสำหรับงานหนัก พร้อมวาล์วปรับตั้งแรงดัน
 - ความสามารถในการยกชั้นที่สอง3 ตัน
 
					| ข้อมูลทางเทคนิค | |
| ระบบ | ไฟฟ้า/ไฮดรอลิก | 
| ความสามารถของลิฟต์หลัก | 4500 กิโลกรัม | 
| ความสามารถของลิฟต์ชั้นที่ 2 | 3000 กิโลกรัม | 
| ความสูงในการยก | 330-2000 มิลลิเมตร | 
| ความสูงในการยกชั้นที่ 2 | 500 มิลลิเมตร | 
| ความยาวแท่นยกหลัก | 4500 มิลลิเมตร | 
| ความกว้าแท่นยกหลัก | 630 มิลลิเมตร | 
| ความกว้างแท่นยกชั้นที่ 2 | 550 มิลลิเมตร | 
| น้ำหนัก | 2000 กิโลกรัม | 
| มอเตอร์ | AC 380/220V±5% 50Hz | 
| กำลังไฟ | 2.2 kW | 
| น้ำมันไฮดรอลิก | เบอร์ 68 หรือ เบอร์ 46 น้ำมันไฮดรอลิกที่ทนต่อการสึกหรอ  | 
| แรงดันลม | 5-6 กิโลกรัมต่อลูกบาศก์เซนติเมตร | 
รหัสสินค้า 0900705158
ลิฟต์แพลตฟอร์มแบบขากรรไกร 3.5 ตัน
ลิฟต์แพลตฟอร์มแบบขากรรไกร 3.5 ตัน โครงสร้างประหยัดพื้นที่ ใช้งานมั่นคงด้วยระบบไฮดรอลิก นิวเมติก และไฟฟ้าคุณภาพสูง มาพร้อมระบบล็อกอัตโนมัติและอุปกรณ์กันระเบิดเพื่อความปลอดภัยสูงสุด สะดวกต่อการเปลี่ยนยางและซ่อมช่วงล่าง เหมาะสำหรับอู่ซ่อมรถที่ต้องการลิฟต์อเนกประสงค์ แข็งแรง ทนทาน มาตรฐานยุโรป
คุณสมบัติ
- โครงสร้างแพลตฟอร์มแบบขากรรไกร ช่วยประหยัดพื้นที่
 - อุปกรณ์ทำงานอย่างมั่นคงโดยใช้ชิ้นส่วนไฮดรอลิก นิวแมติกและไฟฟ้านำเข้าคุณภาพสูง
 - ระบบล็อกอัตโนมัติด้วย ระบบนิวแมติก และอุปกรณ์ท่อป้องกันการระเบิด ช่วยเพิ่มความปลอดภัย
 - สะดวกต่อการถอด-ติดตั้งยาง และการบำรุงรักษาช่วงล่างรถ
 - โครงสร้างข้อต่อที่ได้รับการปรับปรุงให้สอดคล้องกับ มาตรฐานตลาดอเมริกา และยุโรป
 - กระบอกสูบที่เสริมความแข็งแรงพร้อมซีลคุณภาพเยอรมัน
 
| ข้อมูลทางเทคนิค | |
| ความสามารถในการยก | 3500 กิโลกรัม | 
| น้ำหนัก | 900 กิโลกรัม | 
| ยกได้สูงสุด | 1930 มิลลิเมตร | 
| ความสูงเมื่อรถอยู่บนแท่น | 105 มิลลิเมตร | 
| แผ่นรองปรับระดับ | 147x125x35 มิลลิเมตร | 
| ประสิทธิภาพการทำงานของมอเตอร์ | 2.2 กิโลวัตต์ | 
| มอเตอร์ | 2800 รอบต่อนาที | 
| การเชื่อมต่อทางไฟฟ้า 50-60 เฮิรตซ์ | ㆍ380-415 โวล์ตระบบไฟฟ้า 3 เฟส ㆍ215-240 โวล์ต ระบบไฟฟ้า 1 เฟส  | 
| ระยะเวลาในการยกขึ้น | ≤60 วินาที | 
| ระยะเวลาในการยกลง | ≥20วินาที | 
					รหัสสินค้า 0900705100
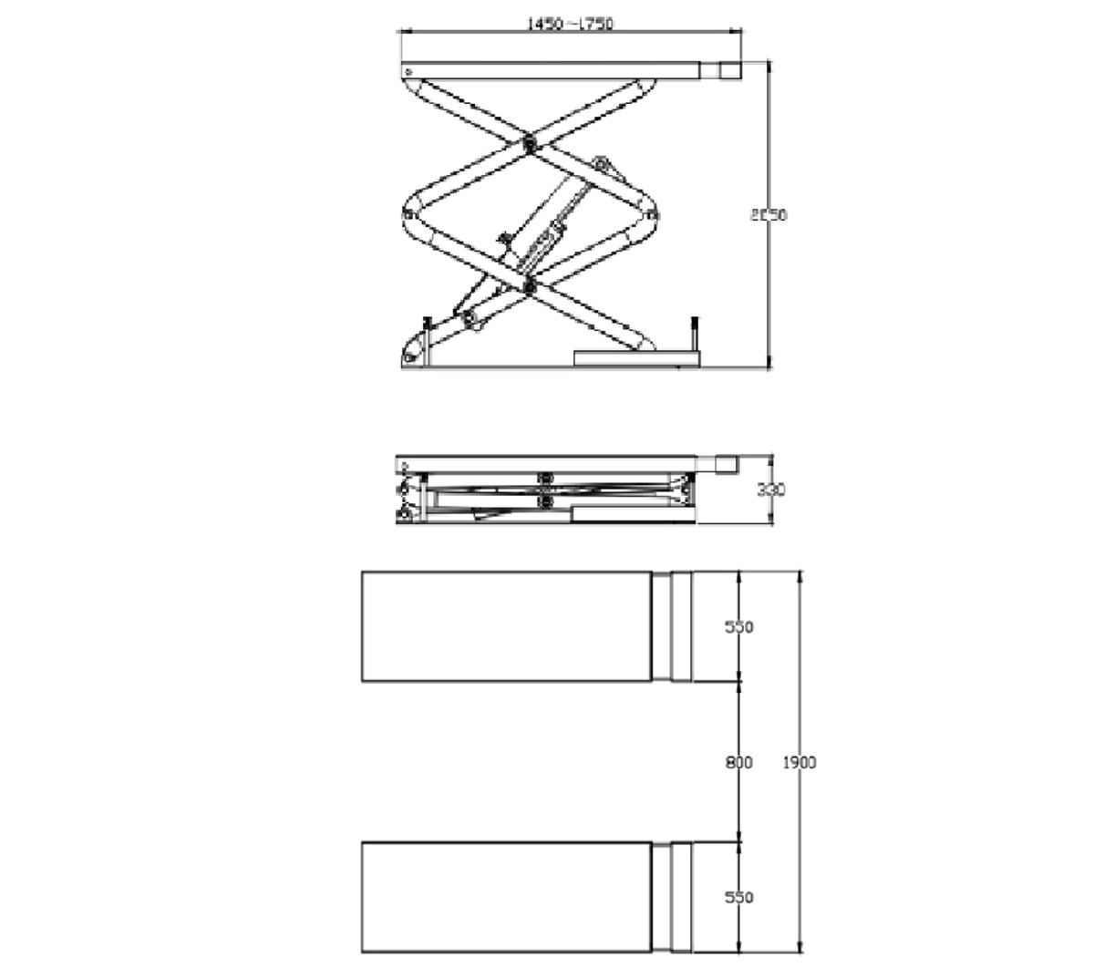
ลิฟต์กรรไกรยกรถขนาด 3.5 ตัน
ลิฟต์กรรไกรขนาด 3.5 ตัน ออกแบบสำหรับงานบำรุงรักษาและซ่อมบำรุงทั่วไป ติดตั้งแบบฝังพื้น ช่วยประหยัดพื้นที่ในอู่ โครงสร้างแข็งแรงด้วยเหล็กคุณภาพสูง มาพร้อมระบบปลดล็อกนิวเมติก เพิ่มความปลอดภัยทุกการใช้งาน เหมาะสำหรับอู่ซ่อมรถที่ต้องการลิฟต์ใช้งานสะดวก ประหยัดพื้นที่ แต่ยังคงยกได้มั่นคง
คุณสมบัติ
- ระบบติดตั้งแบบ ฝังพื้น เท่านั้น
 - ใช้ในการบำรุงรักษา
 - กลไกปลดล็อกระบบนิวเมติก
 - โครงสร้างกรรไกรทำจากโลหะ ให้ความแข็งแรง
 
					| ข้อมูลทางเทคนิค | |
| ระบบ | ไฮดรอลิก | 
| ความสามารถในการยก | 3500 กิโลกรัม | 
| ความสูงของเครื่องยก | 2050 กิโลกรัม | 
| ความสูงของฐานยก | 330 มิลลิเมตร | 
| ความยาวของฐานยก | 1450-1750 มิลลิเมตร | 
| ความกว้างฐาน | 550 มิลลิเมตร | 
| เวลาที่ใช้ในการยกขึ้น | ≤55 วินาที | 
| เวลาที่ใช้ในการยกลง | ≤55 วินาที | 
| กำลังไฟ | 3/N/PE ~380 โวลต์, 50 เฮริตซ์, 10 แอมแปร์  | 
| กำลังไฟทั้งเครื่อง | 2.2 กิโลวัตต์ | 
| น้ำมันไฮดรอลิก | 16 ลิตร | 
| ความดันอากาศ | 6-8 กิโลกรัมต่อตารางเซนติเมตร | 
รายการสินค้าทั้งหมด
เวือร์ทให้ความสำคัญกับความเป็นส่วนตัว เราจะพยายามรักษาความลับและรักษาข้อมูลส่วนบุคคลของคุณให้ปลอดภัยอย่างสูงสุด เพื่อสร้างการบริการและประสบการณ์ที่ดีที่สุด รวมไปถึงเพื่อการวิเคราะห์และพัฒนาเว็บไซต์ให้มีประสิทธิภาพยิ่งขึ้น การใช้เว็บไซต์ของเราต่อไป แสดงว่าคุณยอมรับ นโยบายความเป็นส่วนตัว และการใช้คุกกี้ตลอดจน ข้อกำหนดและเงื่อนไข ของเรา
